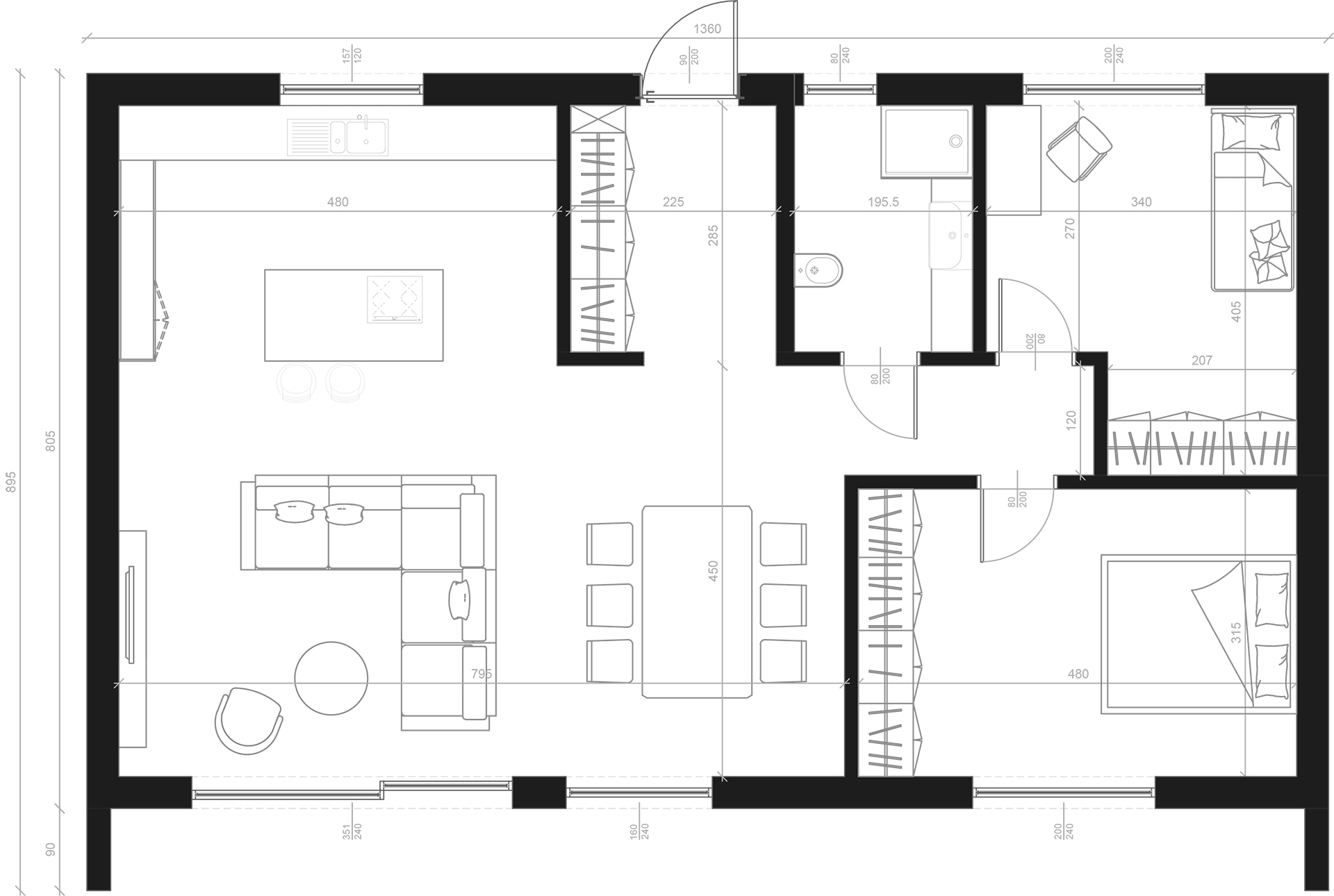
POWIERZCHNIE POMIESZCZEŃ
1. PRZEDSIONEK
2. SALON Z JADALNIĄ
3. KUCHNIA
4. ŁAZIENKA
5. SYPIALNIA 1
6. SYPIALNIA 2
7. KORYTARZ
6,08 m2
38,15 m2
11,16 m2
4,99 m2
11,97 m2
15,12 m2
3,28 m2
CO DOSTAJĘ?
Dom, który jest dowodem na to, że niewielka powierzchnia może kryć w sobie ogromny potencjał – idealny dla rodziny 2+1. Dwie sypialnie i przestronny salon z kuchnią dają wygodę, a sprytny układ zapewnia maksymalne wykorzystanie przestrzeni. To mały, ale wyjątkowo funkcjonalny dom, w którym każdy metr ma znaczenie.
TECHNOLOGIA WOODEN
Przez kilka lat testowaliśmy różne sposoby budowy domów drewnianych oraz kilkanaście różnych przekrojów ścian. Wybraliśmy według nas najlepsze rozwiązanie. Budowane przez nas domy są szczelne i ciepłe – mieszka się w nich po prostu dobrze.
Stosowana przez nas technologia prefabrykacji zapewnia najlepsze możliwe warunki powstawania Twojego domu oraz pozwala wykonać montaż domu w zaledwie kilka dni.
ŚCIANA ZEWNĘTRZNA
- płyta gipsowo-kartonowa
- ruszt instalacyjny wypełniony wełną mineralną (opcjonalnie)
- membrana paroizolacyjna
- płyta konstrukcyjna OSB3 12mm
- konstrukcja szkieletu drewnianego C24 wypełniona wełną mineralną, 45x195mm
- płyta z włókna drzewnego 40mm
- deska elewacyjna świerkowa montowana w pionie na podkonstrukcji drewnianej wentylowanej (olejowana dwukrotnie)
ŚCIANA WEWNĘTRZNA
- płyta kartonowo-gipsowa
- płyta konstrukcyjna OSB3 12mm
- konstrukcja drewniana C24 45×95/120/145mm wypełniona wełną mineralną
- płyta konstrukcyjna OSB3 12mm
- płyta gipsowo-kartonowa
WIĄZARY DACHOWE
- Blacha na rąbek Ruukki Classic
- Łaty i kontrłaty
- Membrana dachowa
- Konstrukcja wiązara z drewna konstrukcyjnego C24 45×145, 45×195 oraz stężenia
- Ocieplenie celulozą o grubości min. 35cm w dolnym pasie wiązara
PŁYTA FUNDAMENTOWA
Płyta fundamentowa to pewny sposób posadowienia domu. Zapewnia on stabilne podparcie konstrukcji jak i najlepsze parametry cieplne poprzez wyeliminowanie mostków termicznych.
- żelbetowa płyta fundamentowa o gubości 15-20cm z rozprowadzoną instalacją kanalizacyjną
- izolacja XPS 300 10/15/20cm z izolacją obwodową XPS 300 8cm + folia budowlana
- zagęszczona podbudowa, około 40-60cm
- grunt rodzimy
Warianty wykończenia
STAN SUROWY ZAMKNIĘTY
376 330 zł brutto
STAN DEWELOPERSKI
508 950 zł brutto
STAN POD KLUCZ
WYCENA INDYWIDUALNA
PŁYTA FUNDAMENTOWA
PŁYTA STANDARD
61 980 zł brutto
PŁYTA +10CM XPS
70 590 zł brutto
PRZEKAZANIE PROJEKTU DO ADAPTACJI
6 480 zł brutto
ADAPTACJA PROJEKTU I UZYSKANIE POZWOLENIA NA BUDOWĘ
10 800 zł brutto
TRANSPORT PREFABRYKATÓW NA BUDOWĘ
wycena indywidualna dla lokalizacji budowy
Jakie są następne kroki?
Płyta fundamentowa to pewny sposób posadowienia domu. Zapewnia on stabilne podparcie konstrukcji jak i najlepsze parametry cieplne poprzez wyeliminowanie mostków termicznych.
Płytę fundamentową realizujemy z najwyższą starannością w dwóch wariantach, które prezentujemy poniżej.
1. Daj nam znać
Napisz do nas lub zadzwoń, aby poinformowac nas, że jesteś zainteresowany tym modelem domu. Skontaktujemy się z Tobą w ciągu 24h żeby zapytać o Twoje potrzeby i doprecyzować ofertę odpowiadającą Twojej wizji efektu końcowego.
2. Oferta
Prześlemy Ci ofertę budowy domu Wooden oraz porozmawiamy o szczegółach budowy i wariantach jakie możesz wybrać w przypadku swojego domu. Ofertę otrzymasz drogą mailową, abyś mógł się z nią spokojnie zapoznać. Po wysłaniu oferty zawsze dzwonimy, aby móc odpowiedzieć na wszystkie Twoje pytania.
3. Umowa i wizja
Jeśli Twoja działka jest prostym przypadkiem możemy podpisać wspólnie umowę na realizację prac i rozpoczynać działanie w ciągu zaledwie kilku dni. W przypadku kiedy warunki na działce, prawne czy terenowe, mogą okazać się bardziej skomplikowane, odbędzie się wizja lokalna, która da odpowiedź ma wszystkie pytania i pozwoli realnie cocenić możliwośći budowy w danych miejscu. Jeśli na jakimkolwiek etapie masz ochotę spotkać się z nami na żywo to zawsze zorganizujemy takie spotkanie.
4. Realizacja
Po podpisaniu umowy zadanie przejmuje nasz dział realizacji i misja budowy Twojego domu zaczyna się dziać. Architekt zajmuje się dokumentacją i sprawami administarcyyjnymi a dział budowlany przygotowuje materiały aby możliwie najszybciej rozpocząć pracę na działce. W pierwszej kolejności powstanie płyta fundamentowa wraz z zewnętrzną częścią instalacji. Po około 2 tygodniach od zakończenia betonowania płyty gotowe powinny być ściany Twojego domu. Wtedy przystąpimy do montażu i pozostałych prac wewnątrz budynku.
TERMIN REALIZACJI
Termin realizacji ustalany jest po akceptacji oferty cenowej i zakresu prac. Nie przekracza on zwykle czasu 4 miesięcy od uzyskania pozwolania na budowę.
porozmawiajmy o Twoim domu
Możemy się z Tobą skontaktować?
Wypełnij formularz kontaktowy
Skontaktujemy się z Tobą w przeciągu 3 godzin, aby dowiedzieć się, jakie są Twoje budowlane potrzeby. Po krótkim wywiadzie będzie w stanie przedstawić Ci propozycję współpracy.
Jeśli oczekujesz bezpłatnej wyceny, przygotujemy ją dla Ciebie w ciągu 3 dni.